4 Bedroom House Layout Ideas
After having covered 50 floor plans each of studios 1 bedroom 2 bedroom and 3 bedroom apartments we move on to bigger options.
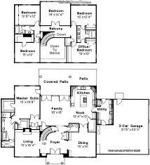
4 bedroom house layout ideas. We may earn commission on some of the items you choose to buy. Master bedroom layout ideas. 10 Walk-in Closet Ideas 10 Closet Layout Ideas.
Make note of sloped ceilings knee walls and other old-house oddities. In small bedroom you may have to get creative with furniture. The minimum depth or length of the lot should be 14 meters to satisfy 2 meters rear setback and 3 meters at the front.
In a spacious design that would be perfect for roommates this three bedroom house includes private baths for each room and a separate guest bath in the front hall. Our small bedroom design ideas can turn a tiny cramped space into a must-see retreat with practical storage solutions and enviable interior design schemes. It prevents you from feeling claustrophobic.
The mirror is a must-have item in a walk-in closet no matter what the size is. See more ideas about bedroom design design interior design. Plus in modern houses the value increases as buyers see such potential.
Start with storage for your shoes. Sketch a to-scale layout on graph paper with each walls width and height as well as details such as base moldings chases and receptacles. With plenty of square footage to include master bedrooms formal dining rooms and outdoor spaces it may even be the ideal size.
Pair your chosen two bedroom house plan with an outdoor seating area garage or garden for a stunning use of available space. For example the narrow bedroom. Even the most humble of box rooms has the ability to serve as a comfortable small bedroom and clever use of furniture can turn it into a multi-functional space too incorporating useful.
