Master Bedroom Layout Design Ideas
Layouts of master bedroom floor plans are very varied.
Master bedroom layout design ideas. We brainstormed 65 bedroom design ideas to help you. Also its always nice waking. 65 Pick a Strategic Layout.
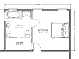
If you have a spacious master bedroom consider incorporating a full desk set-up for your workday. However luxury doesnt just mean minimalist bathroom ideas or the latest state-of-the-art technology installed in your master bathroom suite. Master Bedroom Floor Plans.
Main Bedroom Inspiration Sneak a peek into these beautiful bedroom retreats. Create a nice conversation area in your master suite. 2 Ideas for this Industrial Modern Home Office.
Where you dry your hair brush your teeth or perfect your skincare routine. 7 Ways to. Smaller and more private than other rooms in the home you can truly have fun with your master bathroom decor.
Leave space only on one side to enter and place a desk or a. Whether youre working with a small powder room or the main suite bathrooms are often regarded as being strictly utilitarian. Place each twin bed against the same wall ideally the widest one in your room.
Do not get hung up on popular bedroom trends. One of the first things you do when designing or remodeling a bedroom is choosing a layout. If you have the luxury of planning a new bedroom design from scratch avoid creating a layout that lets you look directly into the master bedroom from a shared space such as the living room or kitchen.
